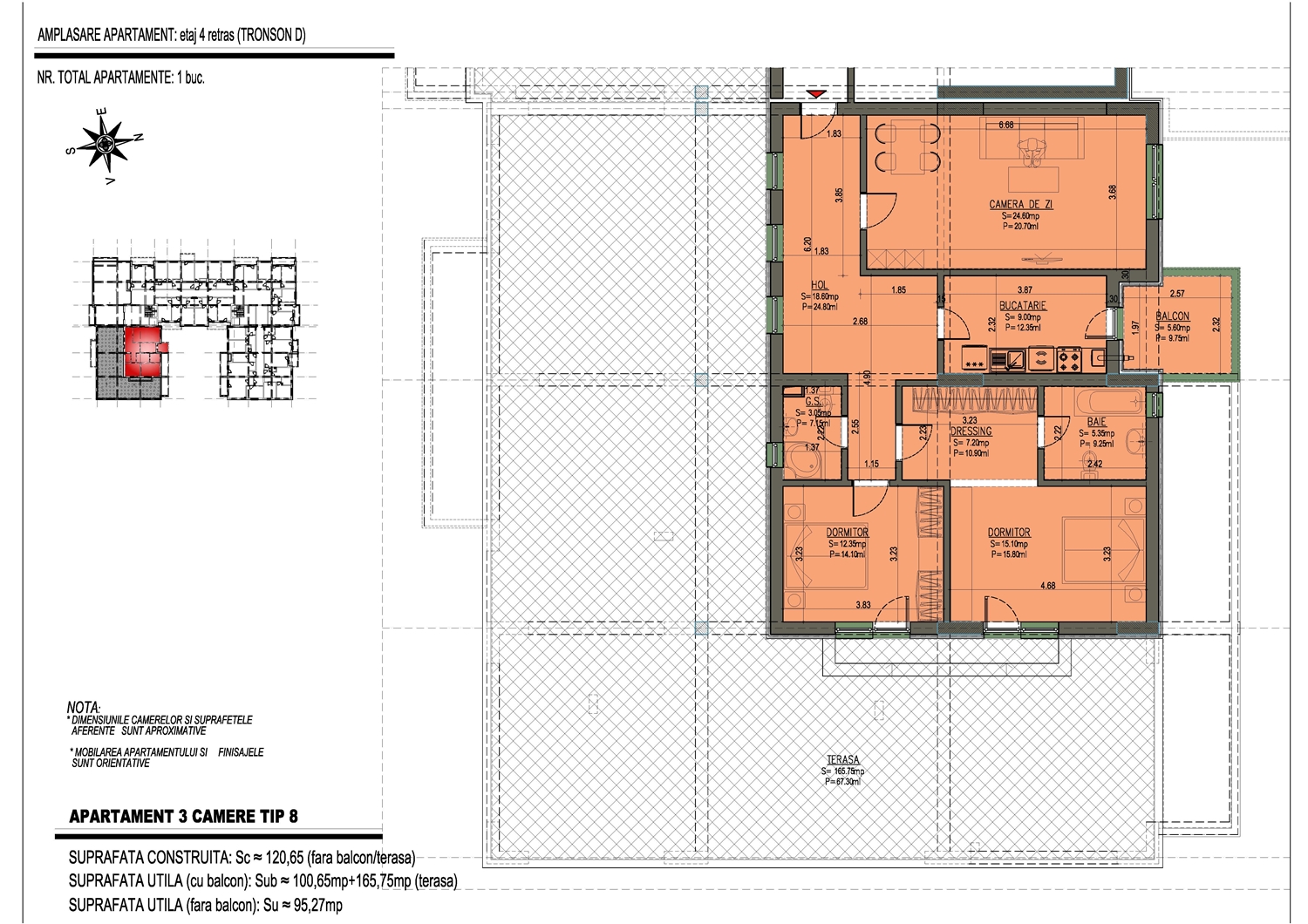
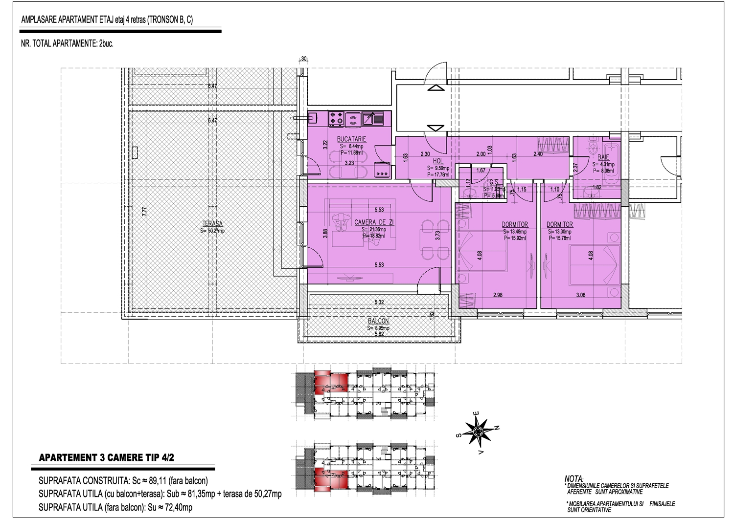
Metropolitan Apărătorii Patriei (sold out)

Localizare:
Str. Ciocanesti nr. 20-36

Suprafata teren ansamblu:
8666 mp

Regim de inaltime:
Demisol+Parter+4Etaje

Data finalizare proiect:
Noiembrie 2016

Metropolitan Residence – Aparatorii Patriei, este un proiect nou ce dispune de o poziţionare foarte bună, cu acces rapid la mijloacele de transport, drumuri asfaltate şi infrastructura completa, bransare la toate utilitatile, acces pietonal în conditii civilizate, iar în imediata vecinatate se află mai toate punctele de interes major cum ar fi: institutii de invatamant, spitale, gradinite, centre comerciale si hipermarketuri.

Blocuri:
4 Blocuri

Nr. Apartamente:
198 unitati locative incluzand garsoniere, studiouri, 2 si 3 camere.
158 locuri de parcare subterane si 31 locuri de parcare supraterane.

Materiale folosite:
blocuri din cadre de beton armat:

  • 30 cm exterior;
  • instalatii electrice din cupru;
  • instalatii sanitare din PPR;
  • tamplarie – Rehau cu 5 camere, geam clar – Low e;
  • izolatie – polistiren de 10 cm;

Utilitati:
apa, canalizare, gaze, curent electric – toate de la furnizorii zonali (Apa Nova, Distrigaz, Enel, etc).

Finisaje:
gresie, faianta, parchet, usi interior – toate la alegerea clientilor.

Echipamente:
calorifere, centrala termica

Facilitati Metropolitan Residence:

  • Abonament cablu TV + Internet
  • Contract Paza Umana
Confidenţialitatea ta este importantă pentru noi. Vrem să fim transparenţi și să îţi oferim posibilitatea să accepţi cookie-urile în funcţie de preferinţele tale.
×
Alegerea dumneavoastră privind modulele cookie de pe acest site
FIŞIERE COOKIE NECESARE
Aceste cookies sunt strict necesare pentru funcţionarea site-ului și nu necesită acordul vizitatorilor site-ului, fiind activate automat.
Afisează modulele cookie necesare
Vă rugăm să alegeţi care dintre fişierele cookie de mai jos nu doriţi să fie utilizate în ce vă priveşte.
Aceste module cookie ne permit să analizăm modul de folosire a paginii web, putând astfel să ne adaptăm necesității userului prin îmbunătățirea permanentă a website-ului nostru.
Afisează modulele cookie necesare
Aceste module cookie vă permit să vă conectaţi la reţelele de socializare preferate și să interacţionaţi cu alţi utilizatori.
Afisează modulele cookie necesare
Aceste module cookie sunt folosite de noi și alte entităţi pentru a vă oferi publicitate relevantă intereselor dumneavoastră.